frFrançais


Le projet
Une extension en forme de L de 4 étages a été réalisée au-dessus du bâtiment commercial existant de 3 étages. Mode de construction : Ossature en acier et béton avec des éléments de façade non porteurs en bois.
La construction
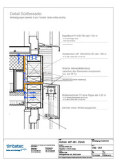
La mise en œuvre La structure porteuse du bâtiment a été réalisée en acier et en béton armé. Les façades et le toit ont été réalisés en bois de construction. La structure du toit est constituée d'un panneau en bois lamellé-croisé posé sur la structure en acier. Les éléments de façade sont réalisés en ossature bois et suspendus devant la structure porteuse. Ils sont en outre surisolés et enduits sur toute leur surface.
Données de construction
- bâtiment en forme de L
- Extension de 4 étages
Prestations de Timbatec
- Statique et construction des éléments de façade
- Direction des travaux spécialisés pour les éléments de façade
Ingénieur civil
BHK Ingenieure AG
8600 Dübendorf
Entrepreneur en bois
Brunner Erben AG
8315 Lindau
Architecte
ELSOHN.FREI GmbH
8003 Zurich