Lancement du projet de recherche DeepWood

06.05.2020

Grâce à la gestion active et à la participation à des projets de recherche et de développement, nous sommes une partie et un moteur de l'évolution positive de la construction en bois. En collaboration avec la Haute école spécialisée bernoise, la Haute école de Lucerne et l'équipe de mise en œuvre de DeepWood, nous continuons à développer la méthode de planification BIM.

Lancement du projet de recherche DeepWood

La méthode de planification Building Information Modeling (BIM) fait partie du fait désormais partie intégrante du marketing et de la communication, en particulier, lorsqu'il s'agit de communiquer l'innovation. Dans la réalité, le BIM présente, outre des de nombreux défis. En effet, le BIM marque le début d'une nouvelle ère dans la conception. de la culture de planification. Le BIM n'est pas un nouvel outil, mais une nouvelle méthode. méthode.

Le BIM dans le secteur public Bâtiments
Le plan d'action Suisse numérique 2018 exige, que la planification des bâtiments des pouvoirs publics et des entreprises proches de la Confédération soit entreprises à partir de 2021 soit réalisée avec des méthodes de collaboration numérique soient mises en œuvre. Malgré cela, dans la réalité, peu de projets de construction sont encore La collaboration entre les différentes équipes de planification et les problèmes d'interface qui en résultent problèmes d'interface coûtent aujourd'hui beaucoup d'énergie et d'efforts. A l'avenir, il faudra tous les planificateurs doivent travailler simultanément sur le même modèle. travailleront ensemble.

DeepWood
Le projet de recherche DeepWood se réfère au futur niveau BIM 2. Le développement du niveau de maturité BIM de niveau 2 à 3 et se pose le défi de savoir comment une collaboration entre plusieurs utilisateurs peut avoir lieu simultanément dans un modèle commun. peut être réalisée. DeepWood utilise pour cela la plateforme Catia. Elle permet de réaliser une conception collaborative en temps réel et interentreprises. de développer et de tester la planification dans la construction en bois.

Transfert de connaissances vers la pratique pratique
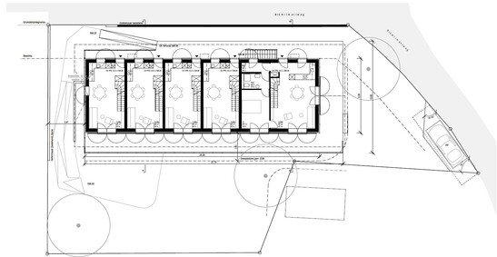
Une partie importante du projet de recherche est l'application exemplaire des nouvelles connaissances à un projet de construction réel. Le Living Lab sert de laboratoire est un nouvel immeuble d'habitation situé au Blüemlimattweg à Thoune. Actuellement, la construction construction en bois de cinq unités d'habitation est planifiée dans les moindres détails sur la plateforme Catia. L'été prochain, les pelleteuses entreront en action et la construction commencera.

Planification dans Catia

BWM15
Visualisation et plan de l'immeuble d'habitation au Blüemlimattweg à Thoune.

Photo de couverture : © Sean Prior/123rf

Protection des données
Ce site web utilise des composants externes qui peuvent être utilisés pour collecter des données sur votre comportement. Pour en savoir plus, consultez nos informations sur la protection des données.