Riggisberg baut Schulhaus in nachhaltiger Holzelementbauweise

10.05.2025

Riggisberg baut auf Bildung: Hier entsteht neuer Schulraum in Holzbauweise: Ein dreistöckiger Elementbau ergänzt die Schulanlage Aebnit. Das Gebäude bietet flexible Lernräume für moderne Unterrichtsformen – mit Ausbaureserve und PV-Anlage. Timbatec plante das Tragwerk und beriet bei der Konstruktion sowie der Bauphysik.

© Projektskizze: Freiluft Architekten BSA SWB SIA, Schwarzenburg | Alexander Grünig

Situationsskizze Schulareal Zentrumsgemeinde Riggisberg

In Kürze und aktuell in der BZ Berner Zeitung v. 16. Mai 2025

Die Gemeinde Riggisberg versorgt ihre Liegenschaften künftig mit einer eigenen Solaranlage.
Zwei Fernwärmenetze beheizen die Gemeinde mit Holz aus lokalen Wäldern.
Der Kanton Bern unterstützt Gemeinden neu in dreizehn Klimaschutz-Bereichen.

--> Zum ganzen Bericht in der BZ Berner Zeitung geht's nachfolgend


Neubau Schulhaus Aebnit: Holzelementbau für die Zukunft des Lernens

Die Gemeinde Riggisberg plant und baut vorausschauend: In den kommenden Jahren wird mit einem Anstieg der Schülerzahlen gerechnet. Grund dafür sind unter anderem die rege Bautätigkeit in der Region sowie die Rolle von Riggisberg als regionales Zentrum. Gleichzeitig verlangen moderne Unterrichtsformen nach flexibleren Raumlösungen. Um diesen Anforderungen gerecht zu werden, wird die Schulinfrastruktur etappenweise erweitert.


Dreistöckiger Holzelementbau ist aufgerichtet -   Basis für flexible Ausbaumöglichkeiten gelegt

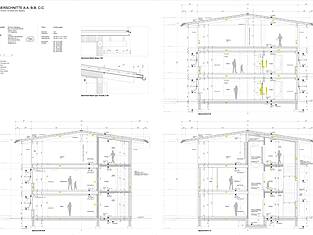
Als erste Etappe wird derzeit die Schulanlage Aebnit um einen Neubau ergänzt. Das Gebäude ist ein dreigeschossiger Elementbau in Holzbauweise, der im April 2025 aufgerichtet wurde. Das Erdgeschoss, das erste Obergeschoss sowie das zweite Obergeschoss sind bereits so erstellt, dass sie künftig Schulräumlichkeiten beherbergen können. Besonders vorausschauend geplant ist auch das dritte Obergeschoss, welches als Reserve im nicht gedämmten Rohbau bereits erstellt ist aber noch nicht bezogen wird. Die Einheit 3. OG wurde in die Holzkonstruktion integriert und kann bei Bedarf rasch als zusätzlichen Schulraum ausgebaut und in Betrieb genommen werden – hierfür müssen lediglich vorbereitete Fensterausschnitte geöffnet, Fenster eingesetzt und die Wände gedämmt werden. Der Lift und das Treppenhaus sind bereits bis in die oberste Etage fertiggestellt.

Je zwei Klassenzimmer werden im Erdgeschoss wie auch im ersten Obergeschoss Platz finden. Das Gebäude ist äusserst flexibel konzipiert und lässt vielfältige Raumaufteilungen und bei Bedarf deren Veränderungen und Anpassungen zu. Das Dach wird mit einer Photovoltaikanlage bestückt und leistet somit auch einen Beitrag zur nachhaltigen Energieversorgung der Gemeinde.


Weitere Etappen in Planung

Der Neubau ist darauf ausgelegt, künftig für die Dauer von 30 Jahren Platz für Schülerinnen und Schüler zu bieten. Bereits heute befinden sich auf dem Areal zwei weitere Schulhäuser, die seit 87 beziehungsweise 32 Jahren in Betrieb sind. Auch sie sind Teil der langfristigen Schulraumstrategie. Das Schulhaus, welches im Bauinventar als erhaltenswert eingestuft ist, soll saniert und umgebaut werden. In einem dritten Schritt folgt der Umbau und die Sanierung des Sekundarschulhauses.

© Planauszüge: Freiluft Architekten BSA SWB SIA, Schwarzenburg | Alexander Grünig


Projektbeteiligte

VerantwortungsbereichTräger
AuftraggeberinGemeinde Riggisberg, 3132 Riggisberg
ArchitekturFreiluft Architekten BSA SWB SIA, 3150 Schwarzenburg
HolzbauRemund Holzbau AG, 3150 Schwarzenburg
Ingenieurholzbau, Statik, Konstruktion und BauphysikTimbatec Holzbauingenieure Schweiz AG, in den SIA-Phasen 32 bis 52

Mit dem neuen Schulhaus Aebnit geht Riggisberg einen wichtigen Schritt in Richtung zukunftsfähiger Bildungsinfrastruktur – 

#ökologisch, #flexibel und #vorausschauend #geplant.

Datenschutzhinweis
Diese Webseite nutzt externe Komponenten, welche dazu genutzt werden können, Daten über Ihr Verhalten zu sammeln. Lesen Sie dazu mehr in unseren Datenschutzinformationen.