Spitalbau komplett aus Holz

13.04.2021

Was lange als undenkbar galt, ist heute Realität: Spitalbauten komplett aus Holz. Direkt neben dem Kantonsspital Freiburg wurde ein ehemaliges Kloster der katholischen Kirche zu einem Psychiatriespital umgenutzt und mit zwei Neubauten aus Holz erweitert.

Spitalbau komplett aus Holz

Das Freiburger Netzwerk für psychische Gesundheit (RFSM) ist ein medizinisches und psychosoziales Kompetenzzentrum. In ambulanten und stationären Behandlungen betreut es seine Patientinnen und Patienten in den drei Bereichen für Kinder und Jugendliche, für Erwachsene und für ältere Menschen. In dieser neuen Klinik sollen die deutschsprachigen Bewohner des Kanton Freiburg behandelt werden können, welche sich bislang für eine Behandlung ihrer Anliegen nach Marsens oder in den Kanton Bern orientieren mussten. Eine deutsch geführte Einrichtung hat bisher im Kanton gefehlt. Die Umnutzung wird in drei Etappen vollzogen: Zuerst wurden die bestehenden Gebäude saniert. Die zwei Holzbauten F und G erweitern den Gebäudekomplex.

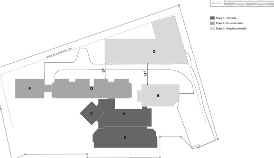
Situationsplan

Grundriss des Freiburger Netzwerk für psychische Gesundheit (RFSM). Die Gebäude A bis E wurden saniert. Gebäude F ist ein Spitalbau aus Holz, der Bürokomplex G wird fast ausschliesslich aus Schweizer Holz gebaut. Quelle: LZA Architekten

Brandschutz/Grundlagen für Spitäler in Holzbauweise
Holz ist ein sicheres Baumaterial. Auch in Bezug auf den Brandschutz. Weil das so ist, lässt die neue Generation der Brandschutzvorschriften BSV 2015 neue Möglichkeiten für den Holzbau zu. Seit Einführung der aktuellen Brandschutzvorschriften dürfen alle Gebäude aus Holz konstruiert werden – unabhängig von deren Nutzung. Kurz gesagt: Holz normalisiert sich als Baustoff ohne Sonderregelung. Die Brandschutznorm beschreibt zwei Standardkonzepte: 

  • Bauliches Konzept: Brandschutzkonzept mit vorwiegend baulichen Massnahmen 
  • Löschanlagenkonzept: Brandschutzkonzept mit vorwiegend technischen Massnahmen 


Aus dem gewählten Konzept ergeben sich die Anforderungen an die Konstruktion und die Bauteile. Die neuen Gebäude G und F wurden nach dem baulichen Konzept erstellt. Für das Gebäude F bedeutet das: Jedes Zimmer ist ein eigener Brandabschnitt. Ein Patient muss von einem Feuer im Nachbarszimmer und dessen Rauchentwicklung während 60 Minuten geschützt sein. Die tragenden und brandabschnittbildenden Bauteile müssen als gekapselte Konstruktion ausgebildet sein. Das heisst: Brennbare Bauteile müssen mit einem geeigneten Baustoff beplankt werden, der keinen Brandbeitrag leistet wie zum Beispiel Gipsfaserplatten.

Details

Drei Details aus dem Gebäude F. Links: Das Tragwerk und die Geschossdecke sind als gekapselte Bauteile konstruiert. Der Schallschutz wird mit einer elastisch gebundenen Schüttung sichergestellt. So kann vollständig auf Beton verzichtet werden. Mitte: Die gekapselten Stützen liegen auf einem Stahlträger auf. Dieser trägt die gekapselte Geschossdecke. So können alle Aussen- und Innenwände nicht tragend ausgebildet werden. Rechts: Auch der Liftschacht des viergeschossigen Gebäudes ist eine Holzkonstruktion.

Schweizer Holz
Holz ist ein natürlich nachwachsender Rohstoff, der für seine Herstellung nur Sonnenenergie und Wasser benötigt. Ernte und Verarbeitung erfolgen sehr energiearm, und das Material speichert erst noch das Treibhausgas CO₂. Noch besser schneidet Holz aus der Schweiz ab: Einheimisches Holz wird nicht weit transportiert, was die darin enthaltene Graue Energie reduziert. Das Gebäude G wurde mit dem Label Schweizer Holz zertifiziert.

Im aktuellen Holzbulletin wird der Umbau RFSM ausführlich vorgestellt. 


Aussenansicht
Innenansicht
Datenschutzhinweis
Diese Webseite nutzt externe Komponenten, welche dazu genutzt werden können, Daten über Ihr Verhalten zu sammeln. Lesen Sie dazu mehr in unseren Datenschutzinformationen.