School Dotzigen goes into operation

13.08.2021

Around 100 students took the new school building into use last week. The wooden building convinces with a generous and flexible room concept - which requires a well thought-out structural concept.

School Dotzigen goes into operation

After one year of construction, the Upper School Association Büetigen-Diessbach-Dotzigen has been handed over the key. Since the summer holidays, around 100 students have been cooking, making in the new school wing since the summer vacations. The building replaces the special wing built in 1975 on the same site. This had deteriorated due to damage to the building over the past 25 years. A new building is therefore the best solution from various points of view. Thanks to the Thanks to the new elevator and the walkway on the upper floor, the two school buildings are now wheelchair-accessible.

Flexible room concept
The work and group rooms, as well as the spacious school kitchen, face north. school kitchen are oriented to the north. On the one hand, this allows a view of the On the other hand, the rooms are less warm in summer. On the warmer south side, with a view of the neighboring buildings, are the access zones and the foyer. access zones and the foyer. The almost 240 m² large multi-purpose room on the first floor can be divided into three separate rooms with two sliding walls. rooms. This allows maximum flexibility of use for the school building.

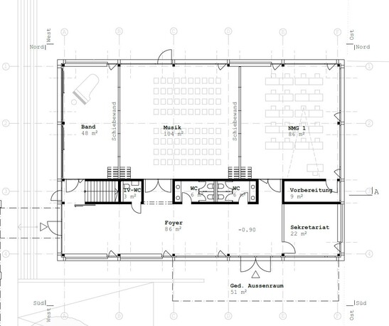
Image multipurpose room
Plan multipurpose room

Above: picture Of the finished multipurpose room with the beech wood joists and the folding partitions. Bottom: Plan of this room.

Well thought-out structural concept
The almost ten-meter-wide multi-purpose room is spanned with glulam beams made of beech wood. They carry the prescribed live load of 3kN (300 kg per square meter) for school buildings. Thanks to construction and the suspended ceiling, only 40 centimeters of the 96-centimeter-high beams are only just under 40 centimeters high. This means that they well into the room. Plans have also been made to add a storey: If space is needed at a later date If space is needed at a later date, the building can simply be extended by one floor.

The seven-meter-wide folding glass door at the west end of the building allows further flexibility of use. A concert by the school band inside of the room can be followed from the stairs in front of the building. can be followed.

Image west facade
Plan west facade

Top: Image of the west facade with the seven-meter-wide window front and the Passerelle into the old building. Bottom: Plan of the west facade

Construction costs
In order to offer the pupils of the municipalities of of Büetigen-Diessbach-Dotzigen the best possible conditions for teaching. the electorate granted a building loan of 4.1 million Swiss francs in 2019. francs. Today, two years later, the Biel-based architecture firm Leimer Tschanz Architekten AG was able to achieve a precision landing in terms of construction costs.

Privacy notice
This website uses external components that can be used to collect data about your behavior. Read more about this in our privacy policy.